Beskrivelse
Elegant Grå Granittkjøkkenvask med Praktisk Avrenningsfelt
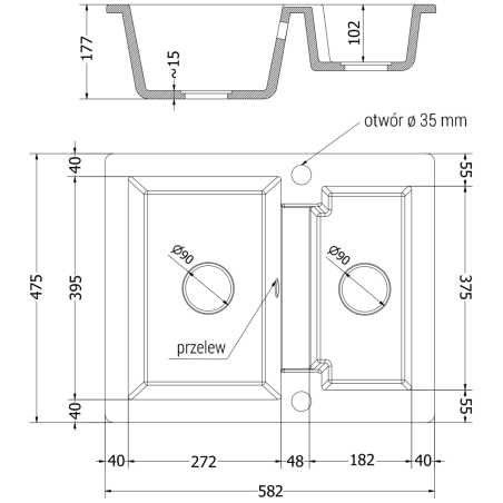
Oppdag vår stilige kjøkkenvask i granitt, designet for å kombinere funksjonalitet med moderne estetikk. Med mål på 582x475x177 mm passer denne vasken perfekt i de fleste benkeplater, og gir deg muligheten til å håndtere alt fra daglig oppvask til storslåtte middager. Den dype kummen, med en dybde på 162 mm, er ideell for familier som lager mat daglig, mens den mindre kummen på 102 mm fungerer godt for mer delikate oppgaver.
Lag av slitesterk granitt, kjent for sin motstand mot riper og misfarging, holder denne vasken seg vakker over tid. Den grå fargen tilfører et elegant preg til ditt kjøkken, og den glatte overflaten er lett å rengjøre, perfekt for travle hverdager.
Spesifikasjoner
- Kumstørrelse: 395x272 mm (stor), 375x182 mm (liten)
- Avløpsdiameter: ø90 mm
- Type: 1,5-kummers
- Modell: Nedfelt i benkeplate
- Overflatebehandling av vannlås: Krom
- Overløpshull: Ja
- Hull for armatur: Ja
- Automatisk vannlås inkludert
- Motstandsdyktig mot termisk sjokk
Vasken kommer med både overløpshull og armaturhull, slik at du kan tilpasse den etter dine behov. Den automatiske vannlåsen bidrar til enkel vedlikehold, og sikrer at vasken alltid er i topp stand.
Ofte stilte spørsmål (FAQ)
-
Kan vasken installeres i en standard benkeplate?
Ja, denne vasken er designet for enkel installasjon i vanlige benkeplater. -
Er granittvasken motstandsdyktig mot flekker?
Absolutt! Granittmaterialet er kjent for sin høye motstand mot både flekker og riper. -
Hvordan rengjør jeg vasken best?
Bruk en mild såpe og en myk klut for å holde vasken ren og skinnende.
Legg vasken i handlekurven i dag og gi kjøkkenet ditt en oppgradering!





